FARMACIAS DE TURNO: Cargando...

Propuestas para el rincón de nativas ubicado en el parque municipal

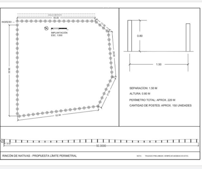
Por SOS Hábitat – Dadas las condiciones de brutalidad de cómo se han tratado las plantas de especies nativas plantadas en el sector denominado ¨Rincón de nativas¨declarado por el Concejo Deliberante , dentro del parque municipal nuevo en el predio del circuito, hemos pedido al municipio si es posible la construcción de un cerco que limite la posibilidad del ingreso de automóviles al predio ya que este ha sido el mayor problema del lugar.

Nos hemos permitido diseñarlo. Además, sería necesario poner cartelería que informe acerca de la importancia de las especies nativas.

Esto ha sido evaluado debido a que se realizan múltiples eventos en el parque y queremos proteger las especies y evitar el ingreso de vehículos en esa área.En este último mes, personas han cortado el alambrado ya existente en el predio para poder pasar con autos y han roto las plantas antes mencionadas.

Desde esta asociación siempre fue planteado el espacio para el libre esparcimiento entre las especies colocadas, pero como debemos reconocer, lamentablemente, que muchos ciudadanos no tienen reparo por los árboles o el cuidado del parque en sí. 

También nos parece oportuno comentar la falta de control en el sitio ya que recorriendo la zona, vemos que se prende fuego en el lugar donde no hay zona habilitada de parrilla cerca de los árboles, y no se tiene conciencia de las graves consecuencias que se pueden ocasionar al prender fuego en el suelo con tanto material orgánico altamente combustible alrededor.

Inicio En Vivo Farmacias Fúnebres Clima